Technical data
A1 GENERAL
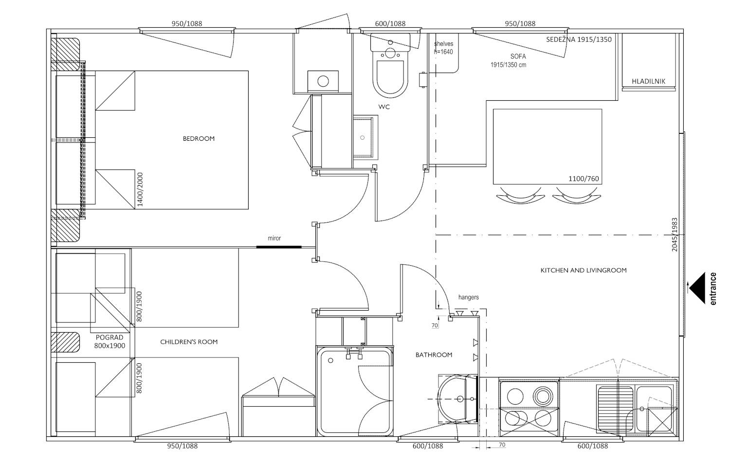
Area
28,00
Number of beds
4+2
Number of bedrooms
2
Number of bathrooms
1+T
Height
3,30
Length
6,50
Width
4,30
B1 CHASSIS
100% Galvanized Steel Chassis with leveling feet
X
Inflatable wheels
X
Detachble hook
X
Leveling Feet
X
B2 FLOOR
Vynil flooring
X
Moisture resistant CTB-H floor 19 mm with PVC floor foil
X
B3 EXTERIOR WALLS
Piva Sandwich Technology ®PST: Cream sandgrain
X
Corners: White
X
B4 WINDOWS AND DOORS
PVC white windows and doors with termopan glass (U=3 W/m2K)
X
Tinted windows in bathrooms
X
Panoramic sliding entrance door with security glass
X
Rolo shutters on kitchen window
X
ALU door of external box - matching colour of windows and doors
X
B5 ROOF AND CEILLING
Duo-pitched Roof
X
Roof construction class B (150 kg/m2)
X
Roof type: Galvanized steel roof
X
Roof Colour: Red
X
Secondary roof type: PVC foil
X
Roof insulation glass wool 50 mm (R=1,25 m2K/W)
X
Cathedral ceiling in living room and flat roof in other rooms
X
Gutters
X
C0 INTERIOR
Furnishing Decor - STANDARD
STYLE 2021
Textile Combination - STANDARD
PEARL 2021
Textile Combination - OPTION 1
OCEAN 2021
Dimout curtains in all rooms except bathroom and toilet
X
Interior separation walls 16 mm
X
Interior doors 25 mm with PVC doorframes
X
Door stopper
X
Metal doorhooks
X
Bathroom and toilet door with lock
X
C1 LIVING ROOM
Sofa extendable
X
Foldable table
X
Chairs
X
Wall shelf over the sofa in living room
X
Hangers in living room (2 pcs)
X
Electrical sockets in living room (2x)
X
TV module in living room (1x TV socket, 2x el. socket)
X
Built-in ceiling spot LED lights in living room with 1-way switch
X
C2 KITCHEN
Gas hob with 4 burners
X
Extractor hood
X
Stainless steel sink with drainer
X
Selfstanding fridge with freezer
X
Kitchen backsplash: Cheramic fireglass protection
X
Electrical sockets over the kitchen counter (2x)
X
Built-in ceiling spot LED lights in kitchen
X
C3 MASTER BEDROOM
Double bed with slatted bed base
140 x 200
Foam mattresses (25 kg/m2) in master bedroom
X
Wooden headboard in master bedroom
X
Bedside tables in master bedroom
X
Wall shelf over the bed in master bedroom
X
Wardrobe in master bedroom
X
Reading LED lights in master bedroom
X
Electrical sockets in master bedroom (2x)
X
Built-in ceiling spot LED lights in master bedroom with 1-way switch
X
C4 CHILDREN BEDROOM
Single beds with slatted bed base
80 x 190
Foam mattresses PN25 in children's bedroom
X
Wooden headboard in children's bedroom
X
Bedside tables in children's bedroom
X
Wall shelf over the bed in children's bedroom
X
Wardrobe in children's bedroom
X
Reading LED lights in children's bedroom
X
Built-in ceiling spot LED lights in children's bedroom with 1-way switch
X
Electrical socket in children's bedroom
X
C6 BATHROOM
Shower cabin
75 x 90
Shower swing doors with security glass
X
Shower PVC wall
X
Wash-stand with mixer tap
X
Mirror with shelf in bathroom
X
Towel holder
X
Hangers in bathroom (2 pcs)
X
Built-in ceiling spot LED lights in bathroom
X
Electrical socket in bathroom
X
C8 SEPARATE TOILET
Wash-basin with mixer tap
X
Ceramic toilet with toilet seat
X
PVC toilet tank with saving function
X
Toilet roll holder
X
Built-in ceiling spot LED lights in toilet
X
D1 WATER AND GAS
External connector to water facilities with pressure regulator
X
PVC water pipes Speedfit®
X
External access to water heater
X
Gas water heater Vaillant 11l natural push
X
Gas connectionin in box: Propan/Butan 30 mBar
X
D2 ELECTRICITY
White surface mounted installations, sockets and switches
X
External connection 1 x 32A, 1P+N+E
X
Built-in ceiling spot LED lights in all rooms
X
Reading LED lights in all rooms
X
D4 HEATING AND COOLING
Preinstallation for Airconditioning in living room
X
E1 EXTERIOR EQUIPMENT